Section 136 Suite
- Client
- Isle of Wight NHS Trust
- Contract Value
- £300k
- Procurement
- JCT Intermediate
- Completed
- July 2022
- Role
- Client Representative
Senior Project Manager
Outline Design Architect
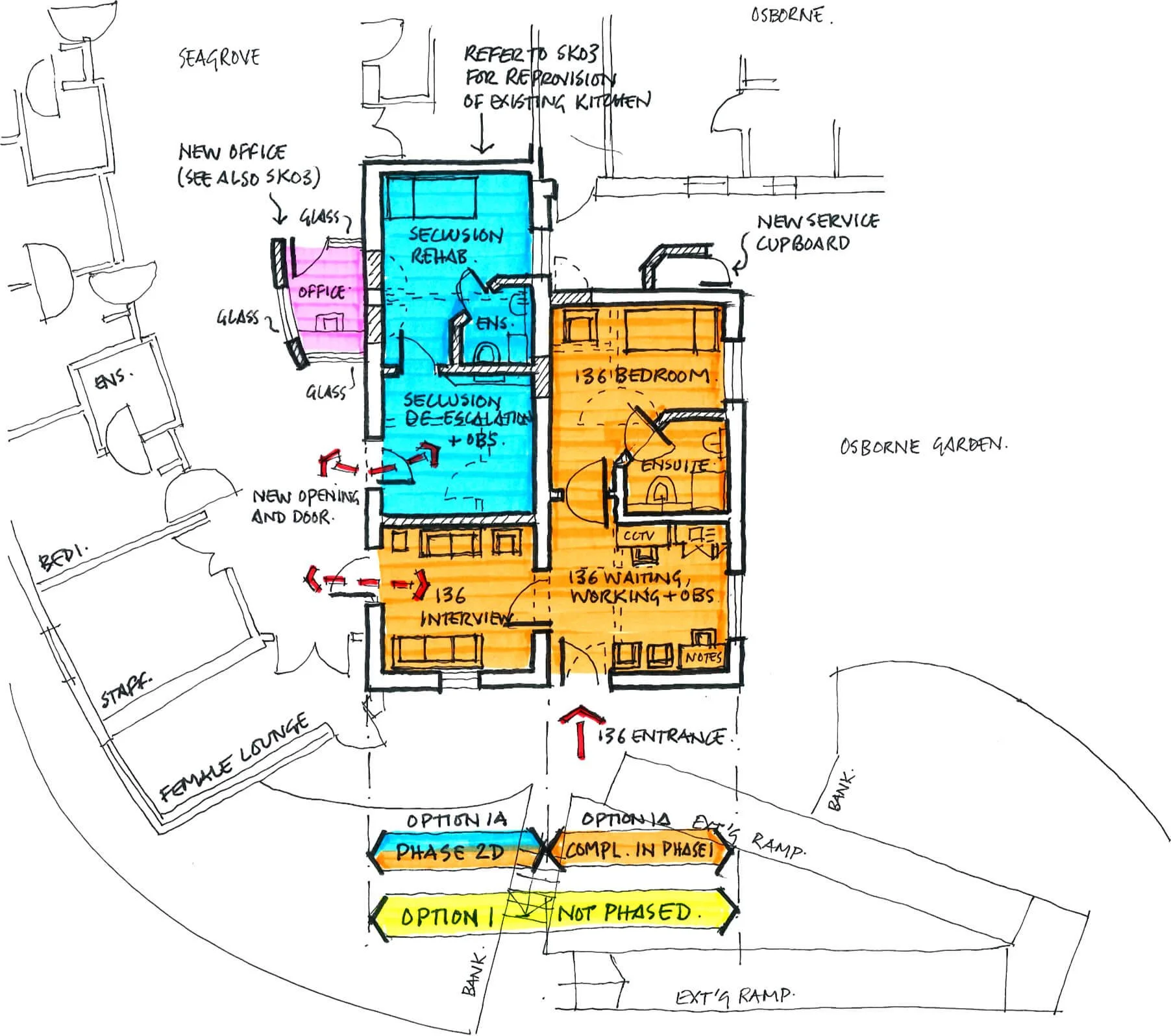
Project description
Alterations and refurbishment of a mental health intensive care ward to introduce a dedicated Section 136 facility and seclusion room.
Areas of interest
Prepared briefing and design sketches before engaging the design team.
Extensive stakeholder and user engagement. We included a patient in the design process who provided useful insights to refine and improve our proposal.